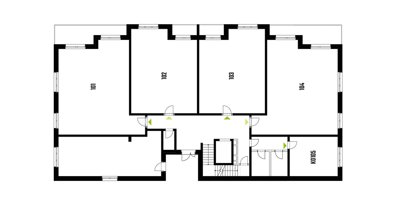
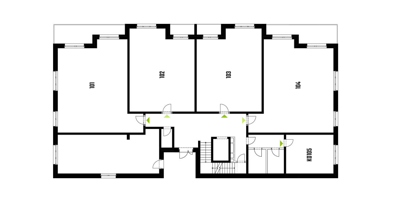
Podlaží 1. NP - objekt A

Omlouváme se, ale interaktivní výběr bytů je dostupný jen na větších zařízení.
Zpět na nabídku bytů
- Prodáno
- K prodeji
- Předrezervováno
- Rezervováno