BYT

B104

1. Etapa │ Objekt: B

Předrezervováno

Dispozice

3+kk

Celková plocha

81,1 m2

Podlaží

1. NP

Cena:

4 990 000,00 Kč

Karta bytu (PDF)

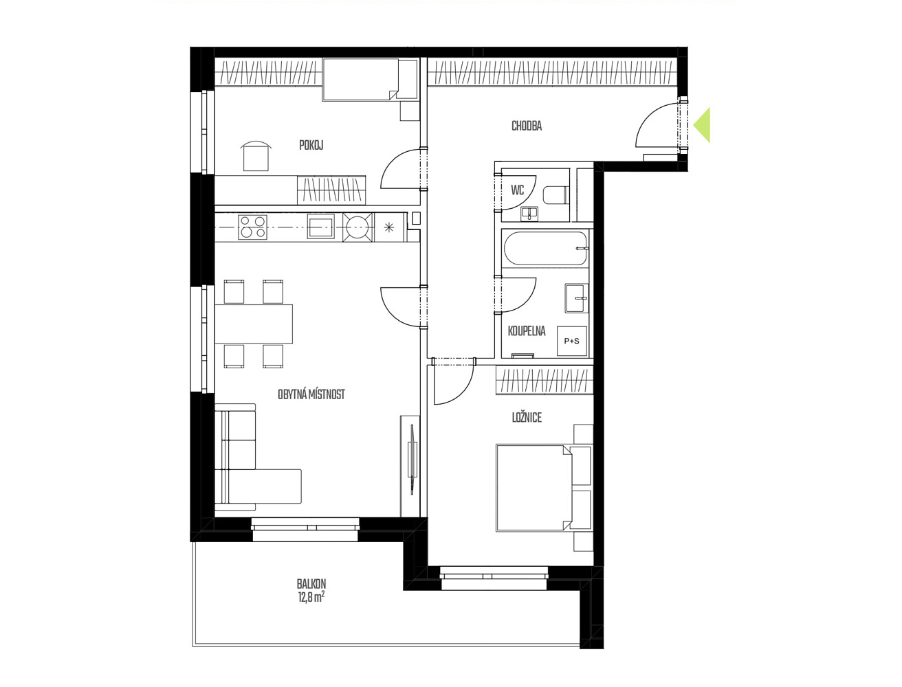
Místnosti + výměry

  • Chodba 16,3 m2
  • Obytná místnost 26,3 m2
  • Koupelna 4,7 m2
  • WC 1,5 m2
  • Pokoj 12,8 m2
  • Ložnice 14,0 m2
  • Celková plocha bytu dle NV č. 366/2013 Sb. 81,1 m2
Zpět na výběř bytů

Tady chcete bydlet

Standardy bytů

Základem projektu BYTOVÉ DOMY U KOMÍNA je promyšlenost konceptu, vysoký standard vybavení s použitím mimořádně kvalitních materiálů, prémiových barevností a moderním pojetím interiérů. Každý z bytů je vybaven řízeným větráním s rekuperací vzduchu, které zlepšuje kvalitu vnitřního prostředí, šetři energii na vytápění a zabraňuje nadměrné vlhkosti v bytě i domě. Předností jsou okna s izolačními trojskly, díky kterým budova dosahuje energetické náročnosti B (velmi úsporná). Je tedy nejen moderní, ale také hospodárná a náklady na provoz budov velmi nízké.

image

Garážová stání pod domem

K bytu je možno přikoupit garážové stání přímo pod domem.
Pohodlně a rychle se tak dostanete suchou nohou ke svému autu.

Parkovací stání (PDF)
image

Sklepy

K bytu je možnost přikoupení sklepa.

Přehled sklepů (PDF)

Máte zájem o byt, prohlídku či bližší informace?

Makléř

Tomáš Chyba

realitní makléř

+420 776 223 327 info@bytyukomina.cz

Váš prohlížeč (Internet Explorer) je zastaralý.

Již nevydává pro systém Windows žádné aktualizace. Stáhněte si jeden z těchto aktuálních, svobodných a vynikajících prohlížečů: